物件ID:197483
情報公開日:2026年04月01日
情報更新日:2026年04月01日
立地
-
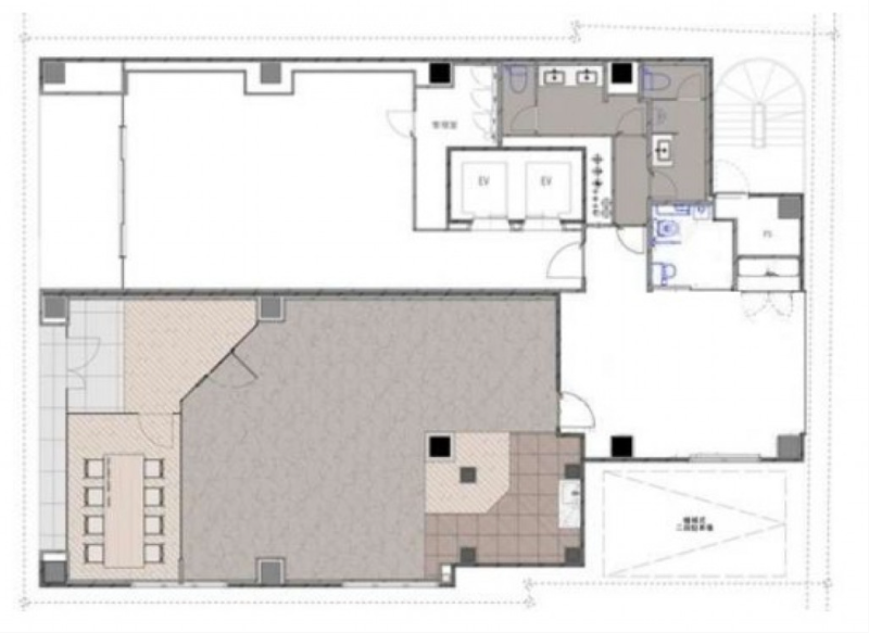
住所 東京都台東区台東三丁目15-3 建物名/所在階 1階 最寄駅 JR山手線御徒町駅
徒歩5分近隣駅1 ー 近隣駅2 ー
費用/契約
-
造作価格 ー 賃料(坪単価) 938,817円(29,662円) 管理費/共益費(坪単価) ー(ー) 保証金/敷金 4ヶ月 / ー 償却 0% 礼金 0ヶ月 更新料/再契約料 ー その他費用 ー 仲介手数料 1ヶ月 その他手数料 ー 契約期間 2年 契約種別
用途
-
物件の現況 ー 可能用途 指定あり 坪数 31.65坪
- 備考



















