物件ID:197379
情報公開日:2026年04月01日
情報更新日:2026年04月01日
立地
-
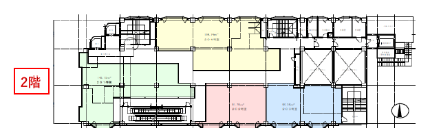
住所 東京都府中市府中町一丁目8-1 建物名/所在階 府中駅前ビル204/2階 最寄駅 京王線府中駅
徒歩1分近隣駅1 ー 近隣駅2 ー
費用/契約
-
造作価格 ー 賃料(坪単価) 1,096,260円(21,998円) 管理費/共益費(坪単価) ー(ー) 保証金/敷金 5ヶ月 / ー 償却 ご相談 礼金 1ヶ月 更新料/再契約料 1ヶ月 その他費用 ー 仲介手数料 1ヶ月 その他手数料 ー 契約期間 2年 契約種別
用途
-
物件の現況 サービス(その他) 可能用途 指定あり 坪数 49.83坪
- 備考




















