物件ID:197318
情報公開日:2026年03月31日
情報更新日:2026年04月01日
立地
-
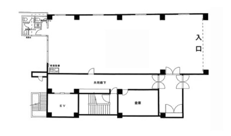
住所 東京都新宿区高田馬場三丁目3-3 建物名/所在階 NIAビル/1階 最寄駅 JR山手線高田馬場駅
徒歩1分近隣駅1 東京メトロ東西線高田馬場駅
徒歩1分近隣駅2 西武新宿線高田馬場駅
徒歩1分
費用/契約
-
造作価格 ー 賃料(坪単価) 3,318,304円(48,400円) 管理費/共益費(坪単価) 274,240円(4,000円) 保証金/敷金 ご相談 / ー 償却 2ヶ月 礼金 0ヶ月 更新料/再契約料 1ヶ月 その他費用 ー 仲介手数料 1ヶ月 その他手数料 ー 契約期間 2年 契約種別
用途
-
物件の現況 ー 可能用途 指定あり 坪数 68.56坪
- 備考






















