物件ID:197219
情報公開日:2026年03月31日
情報更新日:2026年03月31日
立地
-
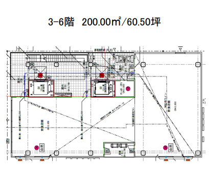
住所 東京都品川区西五反田一丁目3-10 建物名/所在階 東栄ビル/3階 最寄駅 JR山手線五反田駅
徒歩1分近隣駅1 ー 近隣駅2 ー
費用/契約
-
造作価格 ー 賃料(坪単価) ご相談(0円) 管理費/共益費(坪単価) ご相談(ご相談) 保証金/敷金 12ヶ月 / ー 償却 1ヶ月 礼金 1ヶ月 更新料/再契約料 1ヶ月 その他費用 保証会社利用必須 火災保険加入要 別途看板代 仲介手数料 1ヶ月 その他手数料 ー 契約期間 7年 契約種別 普通賃貸借
用途
-
物件の現況 ー 可能用途 指定あり 坪数 60.50坪
- 備考
- 内装マネジメント費:4,400円/㎡ 別区画同時募集中
1階~6階 飲食相談可 ダクトサイズ250×550 2階以上は2本
内装設計指針・貸方基準書、館内規則制定予定 サイン計画検討中
























