物件ID:197117
情報公開日:2026年03月30日
情報更新日:2026年03月30日
立地
-
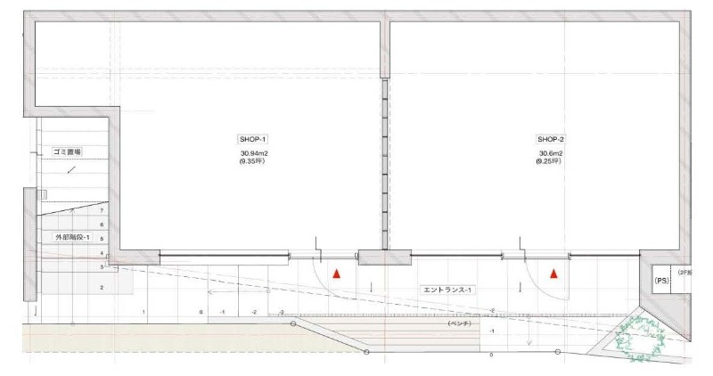
住所 東京都目黒区上目黒三丁目13-10 建物名/所在階 オトナカメグロ 1階 shop1・2区画/1階 最寄駅 東急東横線中目黒駅
徒歩2分近隣駅1 東京メトロ日比谷線中目黒駅
徒歩2分近隣駅2 ー
費用/契約
-
造作価格 ー 賃料(坪単価) 988,000円(53,073円) 管理費/共益費(坪単価) 11,000円(590円) 保証金/敷金 ご相談 / 3ヶ月 償却 ご相談 礼金 1ヶ月 更新料/再契約料 1ヶ月 その他費用 ー 仲介手数料 1ヶ月 その他手数料 ー 契約期間 5年 契約種別 普通賃貸借
用途
-
物件の現況 ー 可能用途 指定あり 坪数 18.62坪
- 備考




















