物件ID:197106
情報公開日:2026年03月30日
情報更新日:2026年03月30日
立地
-
住所 東京都足立区千住一丁目39-3 建物名/所在階 ユウフクハイツ/1階 最寄駅 JR常磐線(上野~取手)北千住駅
徒歩1分近隣駅1 東京メトロ日比谷線北千住駅
徒歩1分近隣駅2 東京メトロ千代田線北千住駅
徒歩1分
費用/契約
-
造作価格 ー 賃料(坪単価) 750,000円(51,183円) 管理費/共益費(坪単価) ー(ー) 保証金/敷金 0ヶ月 / 3ヶ月 償却 ご相談 礼金 2ヶ月 更新料/再契約料 1ヶ月 その他費用 ー 仲介手数料 1ヶ月 その他手数料 ー 契約期間 3年 契約種別
用途
-
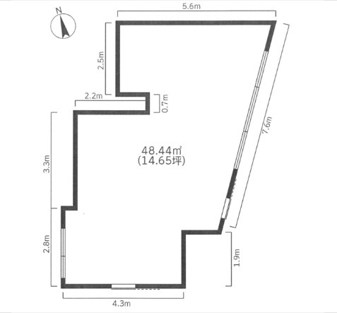
物件の現況 サービス(その他) 可能用途 指定あり 坪数 14.65坪
- 備考
- 現況渡し



















