物件ID:196779
情報公開日:2026年03月26日
情報更新日:2026年04月01日
立地
-
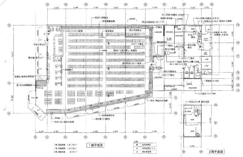
住所 埼玉県深谷市深谷町7-15 建物名/所在階 深谷市深谷町貸店舗/1~2階 最寄駅 JR高崎線深谷駅
徒歩12分近隣駅1 ー 近隣駅2 ー
費用/契約
-
造作価格 ー 賃料(坪単価) 1,650,000円(3,702円) 管理費/共益費(坪単価) ー(ー) 保証金/敷金 0ヶ月 / 3ヶ月 償却 1ヶ月 礼金 1ヶ月 更新料/再契約料 ー その他費用 ー 仲介手数料 1ヶ月 その他手数料 ー 契約期間 5年 契約種別
用途
-
物件の現況 サービス(その他) 可能用途 何業も可 坪数 445.68坪
- 備考
- 指定保証会社・火災保険加入必須。
駐車場54台完備、天井高3.68mの開放感!
償却・契約期間等ご相談なります。



























