物件ID:196757
情報公開日:2026年03月26日
情報更新日:2026年03月27日
立地
-
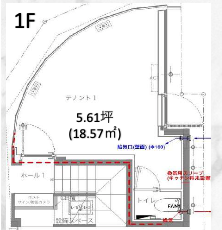
住所 東京都千代田区神田司町二丁目15-11 建物名/所在階 HARVEY神田司町/1階 最寄駅 都営新宿線小川町駅
徒歩2分近隣駅1 ー 近隣駅2 ー
費用/契約
-
造作価格 ー 賃料(坪単価) 407,286円(96,972円) 管理費/共益費(坪単価) ー(ー) 保証金/敷金 6ヶ月 / ー 償却 0% 礼金 0ヶ月 更新料/再契約料 ー その他費用 ー 仲介手数料 1ヶ月 その他手数料 ー 契約期間 ー 契約種別 普通賃貸借
用途
-
物件の現況 サービス(その他) 可能用途 指定あり 坪数 4.20坪
- 備考
- 新築未入居






















