物件ID:196252
情報公開日:2026年03月23日
情報更新日:2026年03月23日
立地
-
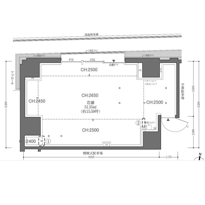
住所 東京都千代田区麹町三丁目7-3 建物名/所在階 ザ·パークハウス麹町三丁目/1階 最寄駅 東京メトロ半蔵門線半蔵門駅
徒歩3分近隣駅1 東京メトロ有楽町線麹町駅
徒歩3分近隣駅2 ー
費用/契約
-
造作価格 ー 賃料(坪単価) 349,800円(22,437円) 管理費/共益費(坪単価) ー(ー) 保証金/敷金 ー / 6ヶ月 償却 0% 礼金 1ヶ月 更新料/再契約料 ー その他費用 ー 仲介手数料 1ヶ月 その他手数料 ー 契約期間 5年 契約種別 普通賃貸借
用途
-
物件の現況 ー 可能用途 指定あり 坪数 15.59坪
- 備考
- ギャラリーやカフェ・物販・クリニック等。
※飲食業業態は都度ご相談ください。






















