物件ID:194988
情報公開日:2026年03月12日
情報更新日:2026年03月12日
立地
-
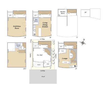
住所 東京都中央区日本橋本町一丁目7-12 建物名/所在階 日本橋本町一丁目ビル 一棟/地下1~4階 最寄駅 東京メトロ半蔵門線三越前駅
徒歩5分近隣駅1 東京メトロ銀座線三越前駅
徒歩6分近隣駅2 東京メトロ日比谷線人形町駅
徒歩6分
費用/契約
-
造作価格 ー 賃料(坪単価) 2,200,000円(40,786円) 管理費/共益費(坪単価) ー(ー) 保証金/敷金 ー / 3ヶ月 償却 ご相談 礼金 2,200,000 更新料/再契約料 ー その他費用 ー 仲介手数料 1ヶ月 その他手数料 ー 契約期間 3年 契約種別
用途
-
物件の現況 サービス(その他) 可能用途 指定あり 坪数 53.94坪
- 備考



















