物件ID:194837
情報公開日:2026年03月11日
情報更新日:2026年03月11日
立地
-
住所 東京都豊島区巣鴨一丁目29-7 建物名/所在階 WS BLDG/2階 最寄駅 JR山手線巣鴨駅
徒歩3分近隣駅1 ー 近隣駅2 ー
費用/契約
-
造作価格 ご相談 賃料(坪単価) 286,000円(20,917円) 管理費/共益費(坪単価) 11,000円(804円) 保証金/敷金 8ヶ月 / 0ヶ月 償却 3ヶ月 礼金 2ヶ月 更新料/再契約料 ー その他費用 ー 仲介手数料 1ヶ月 その他手数料 ー 契約期間 6年 契約種別 普通賃貸借
用途
-
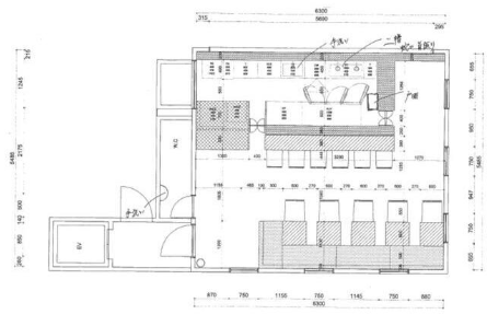
物件の現況 居酒屋 可能用途 ご相談 坪数 13.67坪
- 備考
- 引渡し 期日指定 2026年05月01日

























