物件ID:193821
情報公開日:2026年03月03日
情報更新日:2026年03月03日
立地
-
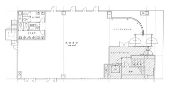
住所 埼玉県さいたま市南区南浦和二丁目41-4 建物名/所在階 つばさビル/1階 最寄駅 JR京浜東北線南浦和駅
徒歩3分近隣駅1 ー 近隣駅2 ー
費用/契約
-
造作価格 ー 賃料(坪単価) 970,900円(15,399円) 管理費/共益費(坪単価) 138,688円(2,199円) 保証金/敷金 6ヶ月 / 0ヶ月 償却 ご相談 礼金 1ヶ月 更新料/再契約料 1ヶ月 その他費用 初回保証料:月額総賃料の100% 仲介手数料 1ヶ月 その他手数料 ー 契約期間 3年 契約種別
用途
-
物件の現況 ー 可能用途 ご相談 坪数 63.05坪
- 備考



















