物件ID:175628
情報公開日:2025年10月02日
情報更新日:2026年03月24日
立地
-
住所 埼玉県さいたま市南区南浦和二丁目41-4 建物名/所在階 つばさビル/1階 最寄駅 JR京浜東北線南浦和駅
徒歩3分近隣駅1 JR武蔵野線南浦和駅
徒歩3分近隣駅2 ー
費用/契約
-
造作価格 ー 賃料(坪単価) 970,900円(15,399円) 管理費/共益費(坪単価) 138,688円(2,199円) 保証金/敷金 6ヶ月 / ー 償却 ご相談 礼金 1ヶ月 更新料/再契約料 1ヶ月 その他費用 ⼀般ゴミ処分費:6,600円/⽉ 保険加入要 仲介手数料 1ヶ月 その他手数料 ー 契約期間 3年 契約種別
用途
-
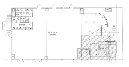
物件の現況 サービス(その他) 可能用途 指定あり 坪数 63.05坪
- 備考
- 専有部分に男女別トイレあり 防犯カメラ 火災警報器
1フロア1テナント 土日・祝日利用可 適格請求書発行可
24時間セキュリティー エレベーター



















