物件ID:193498
情報公開日:2026年03月02日
情報更新日:2026年03月02日
立地
-
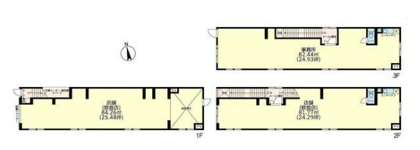
住所 神奈川県横浜市港北区菊名六丁目3-24 建物名/所在階 1階 最寄駅 東急東横線菊名駅
徒歩4分近隣駅1 ー 近隣駅2 ー
費用/契約
-
造作価格 ー 賃料(坪単価) 880,000円(34,525円) 管理費/共益費(坪単価) ー(ー) 保証金/敷金 6ヶ月 / ー 償却 1ヶ月 礼金 2ヶ月 更新料/再契約料 1ヶ月 その他費用 ー 仲介手数料 1ヶ月 その他手数料 ー 契約期間 3年 契約種別
用途
-
物件の現況 ー 可能用途 指定あり 坪数 25.49坪
- 備考
- 保証会社加入必須 保険加入必須





















