物件ID:193410
情報公開日:2026年03月02日
情報更新日:2026年03月02日
立地
-
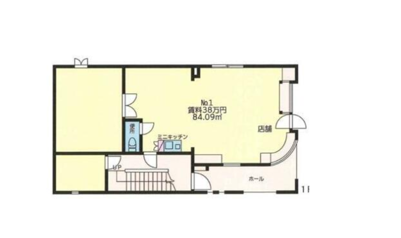
住所 神奈川県藤沢市湘南台二丁目8-12 建物名/所在階 Fビル/1階 最寄駅 小田急江ノ島線湘南台駅
徒歩2分近隣駅1 ー 近隣駅2 ー
費用/契約
-
造作価格 ー 賃料(坪単価) 380,000円(14,938円) 管理費/共益費(坪単価) 10,000円(393円) 保証金/敷金 ー / 6ヶ月 償却 ご相談 礼金 1ヶ月 更新料/再契約料 1ヶ月 その他費用 ー 仲介手数料 1ヶ月 その他手数料 ー 契約期間 2年 契約種別
用途
-
物件の現況 サービス(その他) 可能用途 何業も可 坪数 25.44坪
- 備考




















