物件ID:192773
情報公開日:2026年02月25日
情報更新日:2026年04月21日
立地
-
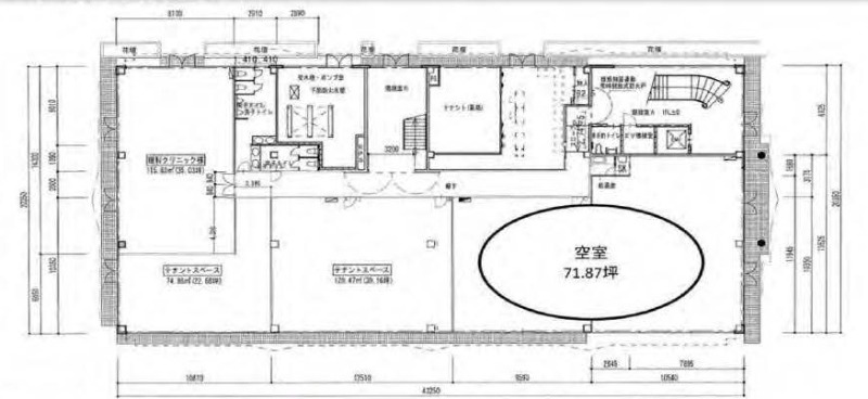
住所 埼玉県久喜市南栗橋四丁目14-1 建物名/所在階 南栗橋シティーセンタービル 1FAB/1階 最寄駅 東武日光線南栗橋駅
徒歩2分近隣駅1 ー 近隣駅2 ー
費用/契約
-
造作価格 ー 賃料(坪単価) 434,830円(6,050円) 管理費/共益費(坪単価) 107,900円(1,651円) 保証金/敷金 ー / 2ヶ月 償却 ご相談 礼金 1ヶ月 更新料/再契約料 ー その他費用 ー 仲介手数料 1ヶ月 その他手数料 ー 契約期間 2年 契約種別
用途
-
物件の現況 サービス(その他) 可能用途 指定あり 坪数 71.87坪
- 備考
- 冷暖房設備費:64,700円/月 税別





















