物件ID:191285
情報公開日:2026年02月12日
情報更新日:2026年02月16日
立地
-
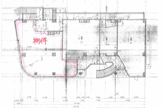
住所 神奈川県横浜市青葉区美しが丘二丁目20-15 建物名/所在階 プラザウィスタリア 201号室/2階 最寄駅 東急田園都市線たまプラーザ駅
徒歩2分近隣駅1 ー 近隣駅2 ー
費用/契約
-
造作価格 ー 賃料(坪単価) 715,000円(19,261円) 管理費/共益費(坪単価) 55,000円(1,481円) 保証金/敷金 10ヶ月 / ー 償却 1ヶ月 礼金 1ヶ月 更新料/再契約料 ー その他費用 保証会社・火災保険加入要 仲介手数料 1ヶ月 その他手数料 ー 契約期間 10年 契約種別
用途
-
物件の現況 ー 可能用途 指定あり 坪数 37.12坪
- 備考
- 土日・祝日利用可 深夜営業可 角部屋
エレベーター/裏口側 看板代:11000円/月






















