物件ID:160127
情報公開日:2025年05月25日
情報更新日:2026年02月17日
立地
-
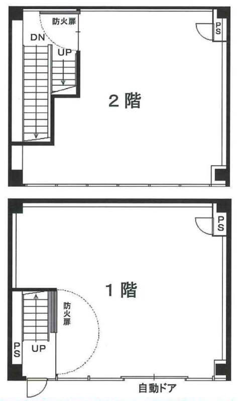
住所 神奈川県横浜市青葉区あざみ野一丁目10-28 建物名/所在階 プロスパあざみ野第2ビル/1~3階 最寄駅 東急田園都市線あざみ野駅
徒歩2分近隣駅1 ー 近隣駅2 ー
費用/契約
-
造作価格 ー 賃料(坪単価) 770,000円(19,762円) 管理費/共益費(坪単価) ー(ー) 保証金/敷金 8ヶ月 / ー 償却 ご相談 礼金 1ヶ月 更新料/再契約料 ー その他費用 ー 仲介手数料 1ヶ月 その他手数料 ー 契約期間 3年 契約種別
用途
-
物件の現況 サービス(その他) 可能用途 指定あり 坪数 38.96坪
- 備考





















