物件ID:189538
情報公開日:2026年01月29日
情報更新日:2026年01月29日
立地
-
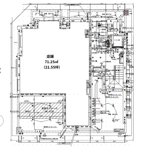
住所 東京都小金井市梶野町五丁目10 建物名/所在階 東小金井新築店舗 1F/1階 最寄駅 JR中央線(快速)東小金井駅
徒歩2分近隣駅1 ー 近隣駅2 ー
費用/契約
-
造作価格 ー 賃料(坪単価) 495,000円(22,966円) 管理費/共益費(坪単価) ー(ー) 保証金/敷金 6ヶ月 / ー 償却 2ヶ月 礼金 1ヶ月 更新料/再契約料 ー その他費用 ー 仲介手数料 1ヶ月 その他手数料 ー 契約期間 3年 契約種別
用途
-
物件の現況 ー 可能用途 指定あり 坪数 21.55坪
- 備考




















