物件ID:188717
情報公開日:2026年01月23日
情報更新日:2026年01月23日
立地
-
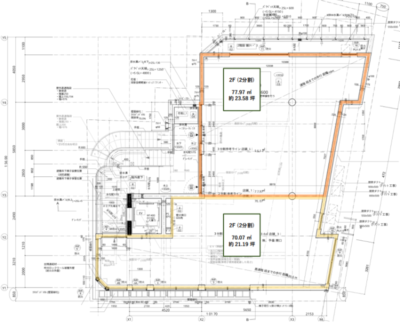
住所 東京都目黒区自由が丘二丁目7 建物名/所在階 A*G 自由が丘/2階 最寄駅 東急東横線自由が丘駅
徒歩7分近隣駅1 ー 近隣駅2 ー
費用/契約
-
造作価格 ー 賃料(坪単価) 1,727,000円(38,574円) 管理費/共益費(坪単価) ー(ー) 保証金/敷金 0ヶ月 / 10ヶ月 償却 ご相談 礼金 1ヶ月 更新料/再契約料 ー その他費用 指定保証会社・火災保険加入必須 仲介手数料 1ヶ月 その他手数料 ー 契約期間 5年 契約種別 普通賃貸借
用途
-
物件の現況 ー 可能用途 指定あり 坪数 44.77坪
- 備考
- 共用電気、共用水道代は面積按分
産業廃棄物処理業者指定 他階同時募集中
区画分割可(201/202/203区画)2分割可




















