物件ID:188164
情報公開日:2026年01月20日
情報更新日:2026年01月20日
立地
-
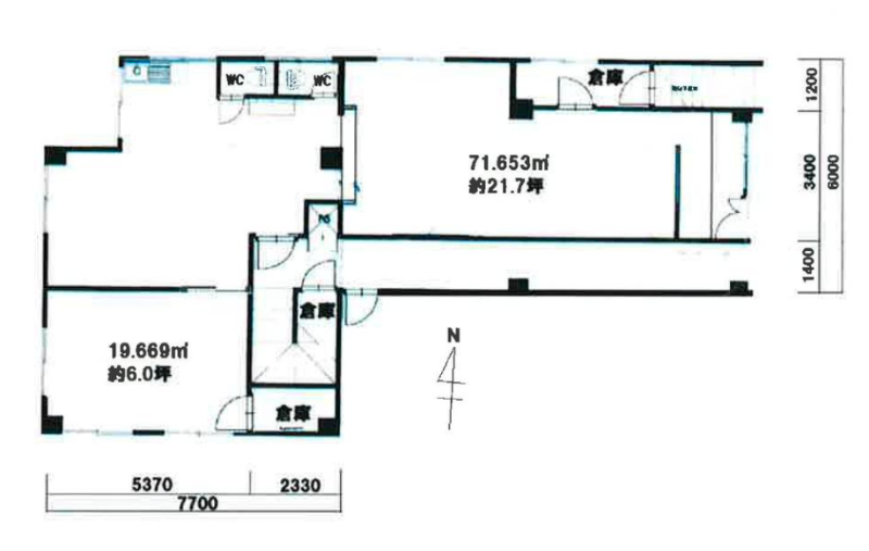
住所 東京都練馬区豊玉北五丁目25-9 建物名/所在階 シャンドール豊玉 1F/1階 最寄駅 西武池袋線練馬駅
徒歩8分近隣駅1 ー 近隣駅2 ー
費用/契約
-
造作価格 ー 賃料(坪単価) 495,000円(15,938円) 管理費/共益費(坪単価) ー(ー) 保証金/敷金 ー / 1,800,000 償却 ご相談 礼金 990,000 更新料/再契約料 ー その他費用 ー 仲介手数料 1ヶ月 その他手数料 ー 契約期間 ー 契約種別 普通賃貸借
用途
-
物件の現況 サービス(その他) 可能用途 指定あり 坪数 31.06坪
- 備考
- 預り金償却※ 解除時当初賃料の1ヵ月分相当額を償却
(中途解除 )解除時当初賃 料の1 ヵ月分相当額を償却




















