物件ID:188035
情報公開日:2026年01月19日
情報更新日:2026年01月19日
立地
-
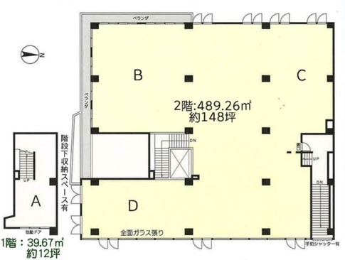
住所 神奈川県横浜市港南区港南台四丁目1-3 建物名/所在階 港南台ニューフラワーマンション/1~2階 最寄駅 JR根岸線港南台駅
徒歩1分近隣駅1 ー 近隣駅2 ー
費用/契約
-
造作価格 ー 賃料(坪単価) 1,430,000円(9,662円) 管理費/共益費(坪単価) ー(ー) 保証金/敷金 5ヶ月 / 0ヶ月 償却 10% 礼金 1ヶ月 更新料/再契約料 1ヶ月 その他費用 保証・保険加入要 仲介手数料 1ヶ月 その他手数料 ー 契約期間 5年 契約種別
用途
-
物件の現況 ー 可能用途 指定あり 坪数 148.00坪
- 備考



















