物件ID:192090
情報公開日:2026年02月18日
情報更新日:2026年02月18日
立地
-
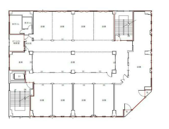
住所 神奈川県横浜市港南区港南台四丁目17-1 建物名/所在階 立川ビル港南台パレス/3階 最寄駅 JR根岸線港南台駅
徒歩1分近隣駅1 ー 近隣駅2 ー
費用/契約
-
造作価格 ー 賃料(坪単価) 1,012,000円(8,671円) 管理費/共益費(坪単価) ー(ー) 保証金/敷金 6ヶ月 / ー 償却 2ヶ月 礼金 0ヶ月 更新料/再契約料 ご相談 その他費用 保証会社・火災保険加入要 看板料55,000円 仲介手数料 1ヶ月 その他手数料 ー 契約期間 7年 契約種別 普通賃貸借
用途
-
物件の現況 サービス(その他) 可能用途 指定あり 坪数 116.70坪
- 備考
- 再契約相談可 24時間利用可 共用トイレ EV1基 スケルトン返し
セキュリティ 個別空調 光ファイバーMDF迄引込済 現状渡し
防火管理者の選任と使用開始届提出要 解約予告6ヶ月前



























