物件ID:187455
情報公開日:2026年01月14日
情報更新日:2026年04月13日
立地
-
住所 東京都江戸川区南小岩七丁目25-12 建物名/所在階 マガザン小岩/3階 最寄駅 JR中央・総武線小岩駅
徒歩3分近隣駅1 ー 近隣駅2 ー
費用/契約
-
造作価格 ご相談 賃料(坪単価) 330,000円(22,808円) 管理費/共益費(坪単価) ー(ー) 保証金/敷金 1,800,000 / 0ヶ月 償却 1ヶ月 礼金 2ヶ月 更新料/再契約料 1ヶ月 その他費用 ー 仲介手数料 1ヶ月 その他手数料 ー 契約期間 3年 契約種別
用途
-
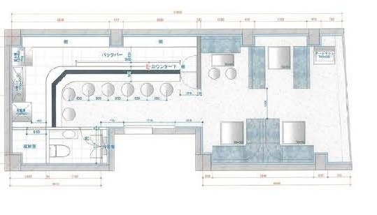
物件の現況 バー 可能用途 何業も可 坪数 14.47坪
- 備考



















