物件ID:187207
情報公開日:2026年01月13日
情報更新日:2026年01月13日
立地
-
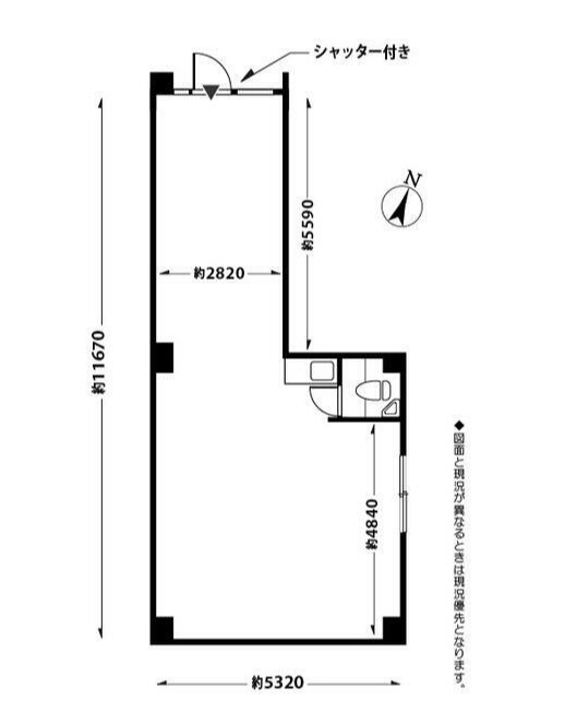
住所 東京都文京区千駄木一丁目22-29 建物名/所在階 ⽩⽯ビル/1階 最寄駅 東京メトロ千代田線千駄木駅
徒歩5分近隣駅1 ー 近隣駅2 ー
費用/契約
-
造作価格 ー 賃料(坪単価) 308,000円(20,198円) 管理費/共益費(坪単価) 22,000円(1,442円) 保証金/敷金 ー / 2ヶ月 償却 ご相談 礼金 0ヶ月 更新料/再契約料 ー その他費用 保証会社・火災保険加入要 仲介手数料 1ヶ月 その他手数料 ー 契約期間 2年 契約種別
用途
-
物件の現況 サービス(その他) 可能用途 指定あり 坪数 15.25坪
- 備考
- 物販、教室、サロン、ジム、治療院、クリニック可 飲食不可
現状渡し/床:スケルトン、壁:白ペンキ塗装 トイレ、ミニキッチン
給湯 エアコン シャッター雨戸 土日・祝日利用可



















