物件ID:184156
情報公開日:2025年12月10日
情報更新日:2026年03月18日
立地
-
住所 東京都港区東麻布一丁目6-2 建物名/所在階 (仮称)フィル・パーク東麻布Ⅱ 3F/3階 最寄駅 都営大江戸線赤羽橋駅
徒歩5分近隣駅1 東京メトロ南北線麻布十番駅
徒歩12分近隣駅2 東京メトロ日比谷線神谷町駅
徒歩10分
費用/契約
-
造作価格 ー 賃料(坪単価) 346,500円(29,977円) 管理費/共益費(坪単価) ー(ー) 保証金/敷金 6ヶ月 / ー 償却 ご相談 礼金 1ヶ月 更新料/再契約料 ー その他費用 ー 仲介手数料 1ヶ月 その他手数料 ー 契約期間 7年 契約種別 普通賃貸借
用途
-
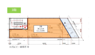
物件の現況 ー 可能用途 指定あり 坪数 11.56坪
- 備考
- エレベーターなし



















