物件ID:183789
情報公開日:2025年12月08日
情報更新日:2026年03月02日
立地
-
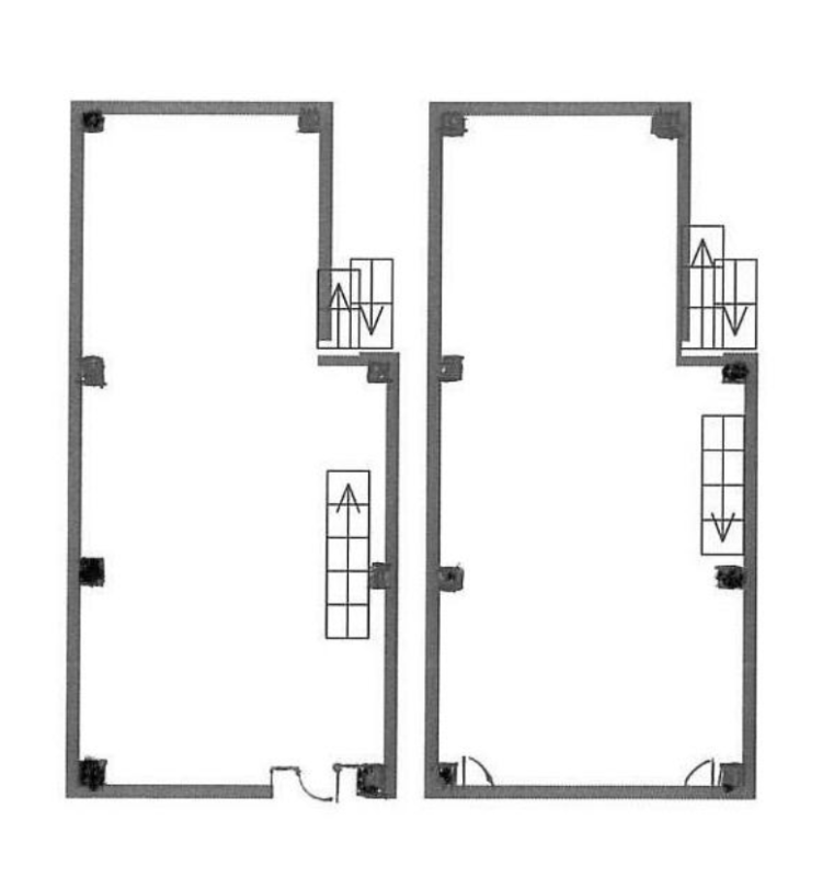
住所 神奈川県平塚市紅谷町9-7 建物名/所在階 平塚市貸店舗一括/1~2階 最寄駅 JR東海道本線(東京~熱海)平塚駅
徒歩2分近隣駅1 ー 近隣駅2 ー
費用/契約
-
造作価格 ー 賃料(坪単価) 880,000円(11,073円) 管理費/共益費(坪単価) ー(ー) 保証金/敷金 6ヶ月 / 0ヶ月 償却 10% 礼金 1ヶ月 更新料/再契約料 1ヶ月 その他費用 商店会費:10,000円/月 、更新事務手数料:33,000 仲介手数料 1ヶ月 その他手数料 ー 契約期間 3年 契約種別
用途
-
物件の現況 ー 可能用途 指定あり 坪数 79.47坪
- 備考
- 1F40坪・2F40坪、24時間利用可・土日・祝日利用可
都市ガス地域(宅内引込無)
電気:現況キュービクル方式、低圧にて引込変更済



















