物件ID:183755
情報公開日:2025年12月06日
情報更新日:2026年02月27日
立地
-
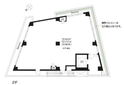
住所 東京都世田谷区玉川二丁目16 建物名/所在階 ザグランデュオフタコタマガワシード 2F/2階 最寄駅 東急田園都市線二子玉川駅
徒歩5分近隣駅1 ー 近隣駅2 ー
費用/契約
-
造作価格 ー 賃料(坪単価) 880,000円(25,974円) 管理費/共益費(坪単価) 99,000円(2,922円) 保証金/敷金 6ヶ月 / 0ヶ月 償却 ご相談 礼金 1ヶ月 更新料/再契約料 1ヶ月 その他費用 ー 仲介手数料 1ヶ月 その他手数料 ー 契約期間 3年 契約種別
用途
-
物件の現況 ー 可能用途 ご相談 坪数 33.88坪
- 備考
- 用途地域 近隣商業 1種中高
電気容量(電灯):30KVA/ 電気容量(動力):20KW























