物件ID:182578
情報公開日:2025年11月28日
情報更新日:2026年02月27日
立地
-
住所 千葉県印西市木下1521-13 建物名/所在階 1階 最寄駅 JR成田線木下駅
徒歩1分近隣駅1 ー 近隣駅2 ー
費用/契約
-
造作価格 ご相談 賃料(坪単価) 1,100,000円(2,932円) 管理費/共益費(坪単価) ー(ー) 保証金/敷金 3ヶ月 / 0ヶ月 償却 1ヶ月 礼金 1ヶ月 更新料/再契約料 1ヶ月 その他費用 指定保証会社・火災保険加入要 仲介手数料 1ヶ月 その他手数料 ー 契約期間 3年 契約種別
用途
-
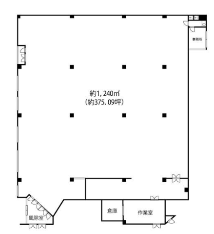
物件の現況 サービス(その他) 可能用途 指定あり 坪数 375.10坪
- 備考
- 天井高3m ビルトインエアコン完備(残置物)
大型トラック搬入可 1フロア1テナント
駐車場有
























