物件ID:179759
情報公開日:2025年11月06日
情報更新日:2026年03月01日
立地
-
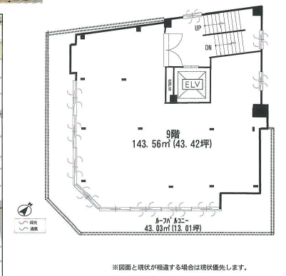
住所 東京都中央区銀座五丁目9-11 建物名/所在階 銀座ファゼンダビル 9F/9階 最寄駅 東京メトロ銀座線銀座駅
徒歩2分近隣駅1 東京メトロ日比谷線東銀座駅
徒歩2分近隣駅2 都営浅草線東銀座駅
徒歩2分
費用/契約
-
造作価格 ー 賃料(坪単価) 1,767,194円(40,693円) 管理費/共益費(坪単価) 143,286円(3,299円) 保証金/敷金 12ヶ月 / ー 償却 1ヶ月 礼金 0ヶ月 更新料/再契約料 1ヶ月 その他費用 ー 仲介手数料 1ヶ月 その他手数料 ー 契約期間 2年 契約種別
用途
-
物件の現況 ー 可能用途 何業も可 坪数 43.43坪
- 備考




















