物件ID:179244
情報公開日:2025年11月03日
情報更新日:2026年02月03日
立地
-
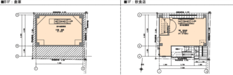
住所 東京都港区港南二丁目4-7 建物名/所在階 7階 最寄駅 JR山手線品川駅
徒歩5分近隣駅1 ー 近隣駅2 ー
費用/契約
-
造作価格 ー 賃料(坪単価) 475,200円(19,800円) 管理費/共益費(坪単価) 92,400円(3,850円) 保証金/敷金 10ヶ月 / ー 償却 ご相談 礼金 1ヶ月 更新料/再契約料 ー その他費用 ー 仲介手数料 1ヶ月 その他手数料 ー 契約期間 3年 契約種別 普通賃貸借
用途
-
物件の現況 サービス(その他) 可能用途 指定あり 坪数 24.00坪
- 備考



















