物件ID:179006
情報公開日:2025年10月31日
情報更新日:2026年04月23日
立地
-
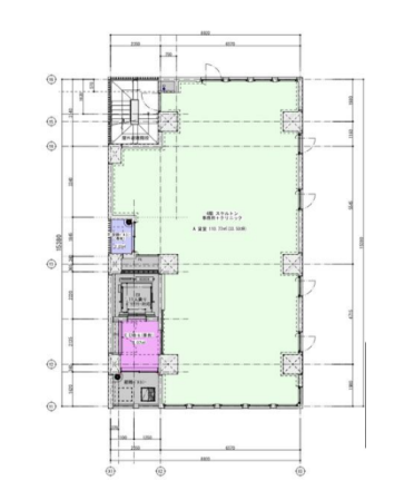
住所 神奈川県横浜市中区北仲通四丁目45 建物名/所在階 NSTビルディングⅥ/4階 最寄駅 みなとみらい線馬車道駅
徒歩1分近隣駅1 ブルーライン関内駅
徒歩5分近隣駅2 JR根岸線桜木町駅
徒歩10分
費用/契約
-
造作価格 ー 賃料(坪単価) 742,300円(20,894円) 管理費/共益費(坪単価) ー(ー) 保証金/敷金 ー / 6ヶ月 償却 ご相談 礼金 1ヶ月 更新料/再契約料 ー その他費用 ー 仲介手数料 1ヶ月 その他手数料 ー 契約期間 5年 契約種別 普通賃貸借
用途
-
物件の現況 ー 可能用途 何業も可 坪数 35.53坪
- 備考
- 賃貸保証加入必須 保険加入要 天井高:2.5m以上
業種により敷金増減の場合あり 契約期間相談可
都市ガス エレベーター 1フロア1テナント



















