物件ID:178617
情報公開日:2026年02月01日
情報更新日:2026年02月01日
立地
-
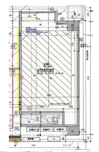
住所 神奈川県横浜市中区吉田町5-12 建物名/所在階 LUMIEC KANNAI(仮称) 1F 40.30平米/1階 最寄駅 JR根岸線関内駅
徒歩5分近隣駅1 京急本線日ノ出町駅
徒歩9分近隣駅2 ブルーライン関内駅
徒歩5分
費用/契約
-
造作価格 ー 賃料(坪単価) 402,270円(33,000円) 管理費/共益費(坪単価) ー(ー) 保証金/敷金 ー / 3ヶ月 償却 ご相談 礼金 0ヶ月 更新料/再契約料 ー その他費用 ー 仲介手数料 1ヶ月 その他手数料 ー 契約期間 5年 契約種別 普通賃貸借
用途
-
物件の現況 サービス(その他) 可能用途 指定あり 坪数 12.19坪
- 備考




















