物件ID:177758
情報公開日:2025年10月21日
情報更新日:2026年01月14日
立地
-
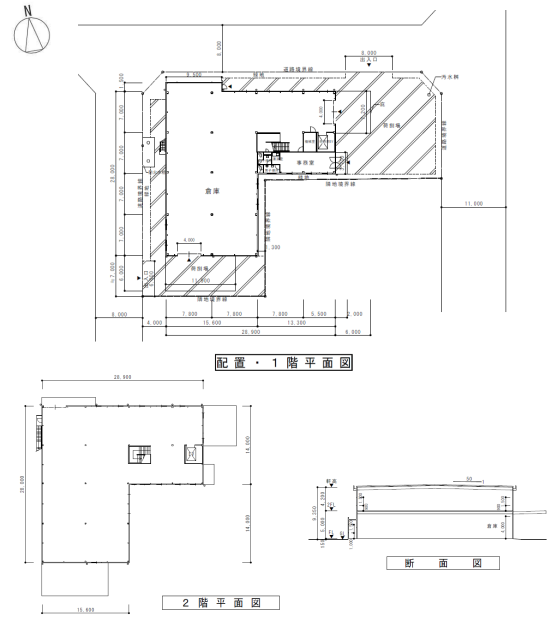
住所 神奈川県厚木市酒井3184 建物名/所在階 1~2階 最寄駅 小田急線本厚木駅
徒歩40分近隣駅1 小田急線愛甲石田駅
徒歩25分近隣駅2 ー
費用/契約
-
造作価格 ー 賃料(坪単価) 2,101,000円(5,500円) 管理費/共益費(坪単価) 47,000円(135円) 保証金/敷金 0ヶ月 / 4ヶ月 償却 1ヶ月 礼金 1ヶ月 更新料/再契約料 ー その他費用 ー 仲介手数料 1ヶ月 その他手数料 ー 契約期間 ー 契約種別 普通賃貸借
用途
-
物件の現況 ー 可能用途 指定あり 坪数 382.00坪
- 備考
- 業種はご相談となります。
現況は工場ですが、店舗利用ご相談可。(用途変更が必要)
駐車場台数は配置によっては10台以上可



















