物件ID:177747
情報公開日:2025年10月21日
情報更新日:2026年01月29日
立地
-
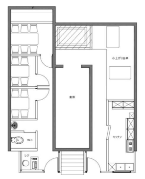
住所 東京都渋谷区代官山町18-3 建物名/所在階 代官山仲野ビル/1階 最寄駅 東急東横線代官山駅
徒歩2分近隣駅1 ー 近隣駅2 ー
費用/契約
-
造作価格 ご相談 賃料(坪単価) 624,000円(49,133円) 管理費/共益費(坪単価) ー(ー) 保証金/敷金 0ヶ月 / 6ヶ月 償却 1ヶ月 礼金 2ヶ月 更新料/再契約料 0ヶ月 その他費用 鍵交換代あり 火災保険・保証会社加入要 仲介手数料 1ヶ月 その他手数料 ー 契約期間 2年 契約種別 普通賃貸借
用途
-
物件の現況 飲食(その他) 可能用途 指定あり 坪数 12.70坪
- 備考
- 飲食店許可追加工事必須 現況渡し 現地要確認
再契約料なし 管理形態:自主管理 DIY自由(要事前申請)
SOHO利用可 販売・美容・ギャラリー等飲食以外の業種も相談可
























