物件ID:176654
情報公開日:2025年10月10日
情報更新日:2025年10月10日
立地
-
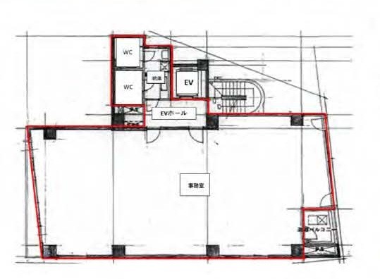
住所 東京都品川区北品川三丁目6-6 建物名/所在階 ACN品川御殿山ビル 6F/6階 最寄駅 京急本線北品川駅
徒歩3分近隣駅1 ー 近隣駅2 ー
費用/契約
-
造作価格 ー 賃料(坪単価) 764,412円(13,197円) 管理費/共益費(坪単価) ー(ー) 保証金/敷金 ー / 4ヶ月 償却 1ヶ月 礼金 0ヶ月 更新料/再契約料 ー その他費用 ー 仲介手数料 1ヶ月 その他手数料 ー 契約期間 2年 契約種別
用途
-
物件の現況 サービス(その他) 可能用途 指定あり 坪数 57.92坪
- 備考



















