物件ID:176233
情報公開日:2026年01月21日
情報更新日:2026年03月08日
立地
-
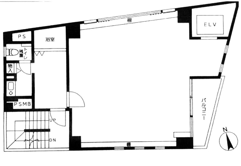
住所 神奈川県茅ヶ崎市共恵一丁目1-4 建物名/所在階 大和第一ビル/3階 最寄駅 JR東海道本線(東京~熱海)茅ケ崎駅
徒歩1分近隣駅1 ー 近隣駅2 ー
費用/契約
-
造作価格 ー 賃料(坪単価) 310,000円(14,740円) 管理費/共益費(坪単価) ー(ー) 保証金/敷金 5ヶ月 / 0ヶ月 償却 ご相談 礼金 1ヶ月 更新料/再契約料 ー その他費用 ー 仲介手数料 1ヶ月 その他手数料 ー 契約期間 3年 契約種別 普通賃貸借
用途
-
物件の現況 サービス(その他) 可能用途 指定あり 坪数 21.03坪
- 備考























