物件ID:176143
情報公開日:2025年10月06日
情報更新日:2025年10月06日
立地
-
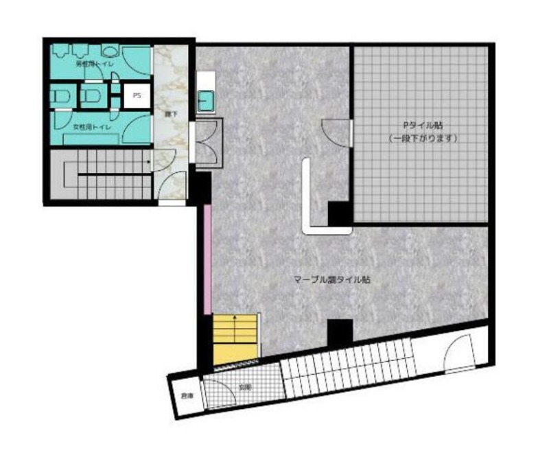
住所 東京都大田区山王二丁目5-3 建物名/所在階 伊川ビル/地下1階 最寄駅 JR京浜東北線大森駅
徒歩2分近隣駅1 京急本線大森海岸駅
徒歩13分近隣駅2 ー
費用/契約
-
造作価格 ー 賃料(坪単価) 423,500円(12,115円) 管理費/共益費(坪単価) 33,000円(944円) 保証金/敷金 6ヶ月 / ー 償却 2ヶ月 礼金 0ヶ月 更新料/再契約料 1ヶ月 その他費用 火災保険加入要 書類代:3,300円 仲介手数料 1ヶ月 その他手数料 ー 契約期間 2年 契約種別
用途
-
物件の現況 サービス(その他) 可能用途 指定あり 坪数 34.95坪
- 備考
- 看板使用料:5,500円/月
共用部分に男女別トイレあり 動力あり エアコン



















