物件ID:175647
情報公開日:2025年10月02日
情報更新日:2025年10月02日
立地
-
住所 東京都目黒区八雲五丁目14-5 建物名/所在階 ⼋雲5丁⽬ビル/2~3階 最寄駅 東急東横線都立大学駅
徒歩13分近隣駅1 東急東横線自由が丘駅
徒歩22分近隣駅2 東急田園都市線駒沢大学駅
徒歩20分
費用/契約
-
造作価格 ー 賃料(坪単価) 1,000,000円(16,952円) 管理費/共益費(坪単価) ー(ー) 保証金/敷金 ー / 3ヶ月 償却 ご相談 礼金 1ヶ月 更新料/再契約料 1ヶ月 その他費用 保険加入要 仲介手数料 1ヶ月 その他手数料 ー 契約期間 2年 契約種別
用途
-
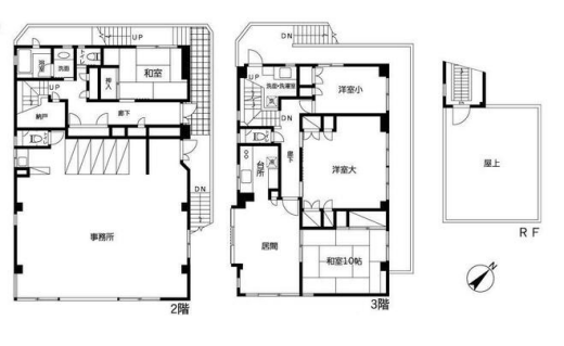
物件の現況 サービス(その他) 可能用途 指定あり 坪数 58.99坪
- 備考
- 専有部分にトイレ2ヶ所あり シャワー 給湯 都市ガス 動力あり
土日祝利用可 2024年12月全室クロス・クッションフロア一部張替
外壁・屋根防水工事、大規模修繕、水道・ガスメータ、2Fトイレ交換



















