物件ID:173809
情報公開日:2025年09月18日
情報更新日:2026年03月11日
立地
-
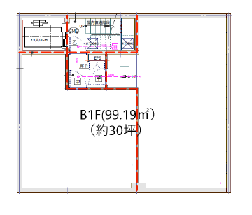
住所 神奈川県横浜市旭区笹野台一丁目28-3 建物名/所在階 笹野台ビル B1F/地下1階 最寄駅 相鉄本線三ツ境駅
徒歩2分近隣駅1 ー 近隣駅2 ー
費用/契約
-
造作価格 ー 賃料(坪単価) 399,000円(13,297円) 管理費/共益費(坪単価) 19,950円(664円) 保証金/敷金 6ヶ月 / ー 償却 1ヶ月 礼金 1ヶ月 更新料/再契約料 ー その他費用 ー 仲介手数料 1ヶ月 その他手数料 ー 契約期間 2年 契約種別
用途
-
物件の現況 ー 可能用途 指定あり 坪数 30.00坪
- 備考



















