物件ID:173786
情報公開日:2025年09月17日
情報更新日:2026年03月03日
立地
-
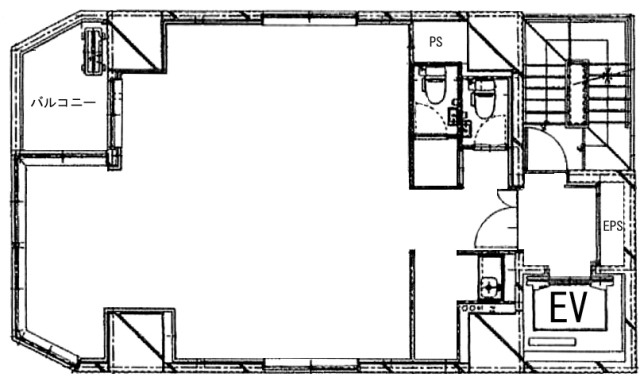
住所 東京都千代田区神田猿楽町一丁目2-3 建物名/所在階 錦華堂ビル/4階 最寄駅 JR中央・総武線御茶ノ水駅
徒歩7分近隣駅1 東京メトロ半蔵門線神保町駅
徒歩4分近隣駅2 東京メトロ千代田線新御茶ノ水駅
徒歩7分
費用/契約
-
造作価格 ー 賃料(坪単価) 374,000円(18,243円) 管理費/共益費(坪単価) 55,000円(2,682円) 保証金/敷金 6ヶ月 / ー 償却 0% 礼金 2ヶ月 更新料/再契約料 1ヶ月 その他費用 ー 仲介手数料 1ヶ月 その他手数料 ー 契約期間 2年 契約種別
用途
-
物件の現況 サービス(その他) 可能用途 指定あり 坪数 20.50坪
- 備考























