物件ID:173751
情報公開日:2025年09月17日
情報更新日:2025年09月17日
立地
-
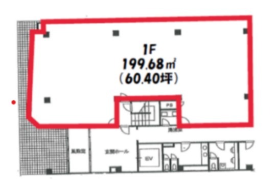
住所 東京都立川市曙町二丁目9-8 建物名/所在階 大黒屋/1階 最寄駅 JR中央本線(東京~塩尻)立川駅
徒歩6分近隣駅1 ー 近隣駅2 ー
費用/契約
-
造作価格 ー 賃料(坪単価) ご相談(0円) 管理費/共益費(坪単価) ー(ー) 保証金/敷金 0ヶ月 / 10ヶ月 償却 0% 礼金 0ヶ月 更新料/再契約料 ー その他費用 ー 仲介手数料 1ヶ月 その他手数料 ー 契約期間 ー 契約種別
用途
-
物件の現況 サービス(その他) 可能用途 指定あり 坪数 60.40坪
- 備考



















