物件ID:173504
情報公開日:2025年09月16日
情報更新日:2026年03月08日
立地
-
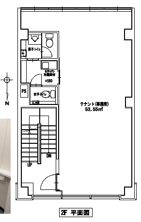
住所 東京都江東区白河二丁目8-4 建物名/所在階 Y2清澄白河2F/2階 最寄駅 東京メトロ半蔵門線清澄白河駅
徒歩1分近隣駅1 ー 近隣駅2 ー
費用/契約
-
造作価格 ー 賃料(坪単価) 297,000円(18,334円) 管理費/共益費(坪単価) 20,000円(1,358円) 保証金/敷金 4ヶ月 / ー 償却 1ヶ月 礼金 1ヶ月 更新料/再契約料 ー その他費用 電気、水道代が別途27500円月掛かります 仲介手数料 1ヶ月 その他手数料 ー 契約期間 2年 契約種別
用途
-
物件の現況 サービス(その他) 可能用途 指定あり 坪数 16.20坪
- 備考





















