物件ID:172956
情報公開日:2025年09月10日
情報更新日:2025年09月10日
立地
-
住所 東京都千代田区神田神保町一丁目4-13 建物名/所在階 MT-O神保町 annex/1~3階 最寄駅 東京メトロ半蔵門線神保町駅
徒歩2分近隣駅1 ー 近隣駅2 ー
費用/契約
-
造作価格 ー 賃料(坪単価) 1,870,000円(26,910円) 管理費/共益費(坪単価) ー(ー) 保証金/敷金 10ヶ月 / ー 償却 1ヶ月 礼金 0ヶ月 更新料/再契約料 0ヶ月 その他費用 保証会社応相談 火災保険加入要 仲介手数料 1ヶ月 その他手数料 ー 契約期間 3年 契約種別 普通賃貸借
用途
-
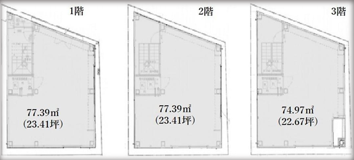
物件の現況 ー 可能用途 指定あり 坪数 69.49坪
- 備考
- スケルトン渡し・スケルトン返し ダムウエーター設置可能
メールボックス・トイレ(1・2F)・防火シャッター
再契約:双方合意のうえ可 短期解約の場合、違約金発生



















