物件ID:172827
情報公開日:2025年09月09日
情報更新日:2026年03月03日
立地
-
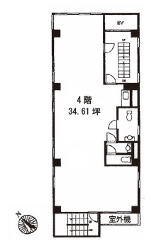
住所 東京都文京区本郷三丁目3-11 建物名/所在階 NCKビル 4F/4階 最寄駅 JR中央線(快速)御茶ノ水駅
徒歩4分近隣駅1 東京メトロ丸ノ内線本郷三丁目駅
徒歩7分近隣駅2 東京メトロ千代田線新御茶ノ水駅
徒歩8分
費用/契約
-
造作価格 ー 賃料(坪単価) 475,887円(45,454円) 管理費/共益費(坪単価) 57,106円(5,454円) 保証金/敷金 2,163,125 / ー 償却 1ヶ月 礼金 0ヶ月 更新料/再契約料 1ヶ月 その他費用 ー 仲介手数料 1ヶ月 その他手数料 ー 契約期間 2年 契約種別 普通賃貸借
用途
-
物件の現況 サービス(その他) 可能用途 指定あり 坪数 10.47坪
- 備考




















