物件ID:172732
情報公開日:2025年09月09日
情報更新日:2026年03月01日
立地
-
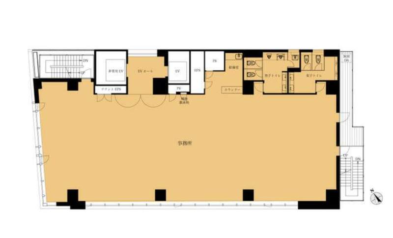
住所 東京都中央区八重洲一丁目3-18 建物名/所在階 VORT東京八重洲/9階 最寄駅 東京メトロ銀座線日本橋駅
徒歩2分近隣駅1 JR山手線東京駅
徒歩3分近隣駅2 東京メトロ東西線日本橋駅
徒歩2分
費用/契約
-
造作価格 ー 賃料(坪単価) 3,840,900円(40,707円) 管理費/共益費(坪単価) ー(ー) 保証金/敷金 0ヶ月 / 5ヶ月 償却 ご相談 礼金 0ヶ月 更新料/再契約料 1ヶ月 その他費用 ー 仲介手数料 1ヶ月 その他手数料 ー 契約期間 3年 契約種別 普通賃貸借
用途
-
物件の現況 ー 可能用途 指定あり 坪数 94.35坪
- 備考
- 駐車場有 50,000円/月 空き5台
9階のみフリーレント4カ月(期間中共益費相当額発生無し)相談可






















