物件ID:170716
情報公開日:2025年08月25日
情報更新日:2026年02月11日
立地
-
住所 東京都江東区大島七丁目7-2 建物名/所在階 大島7丁目店舗/1~3階 最寄駅 都営新宿線大島駅
徒歩5分近隣駅1 ー 近隣駅2 ー
費用/契約
-
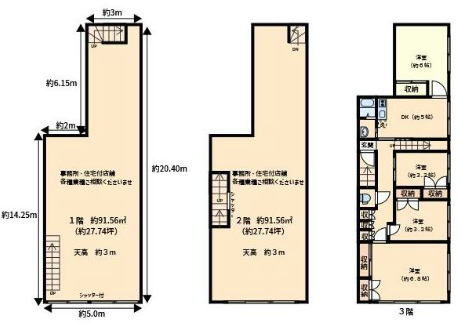
造作価格 ー 賃料(坪単価) 1,200,000円(14,442円) 管理費/共益費(坪単価) ー(ー) 保証金/敷金 7ヶ月 / ー 償却 1ヶ月 礼金 0ヶ月 更新料/再契約料 1ヶ月 その他費用 保証会社加入要 仲介手数料 1ヶ月 その他手数料 ー 契約期間 5年 契約種別
用途
-
物件の現況 ー 可能用途 指定あり 坪数 83.09坪
- 備考






















