物件ID:170542
情報公開日:2025年08月23日
情報更新日:2026年02月18日
立地
-
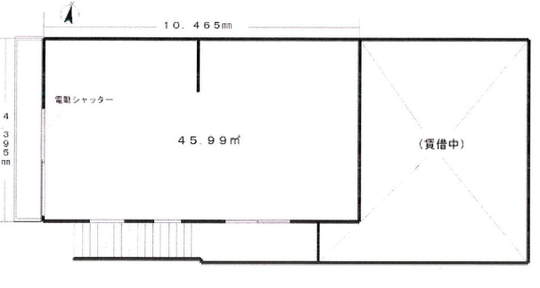
住所 東京都調布市仙川町二丁目7-7 建物名/所在階 ライブスクウェアⅡ 2F/2階 最寄駅 京王線仙川駅
徒歩4分近隣駅1 ー 近隣駅2 ー
費用/契約
-
造作価格 ー 賃料(坪単価) 231,000円(16,604円) 管理費/共益費(坪単価) 6,955円(549円) 保証金/敷金 5ヶ月 / ー 償却 ご相談 礼金 1ヶ月 更新料/再契約料 ー その他費用 ー 仲介手数料 1ヶ月 その他手数料 ー 契約期間 5年 契約種別 普通賃貸借
用途
-
物件の現況 ー 可能用途 指定あり 坪数 13.91坪
- 備考




















