物件ID:170275
情報公開日:2025年08月21日
情報更新日:2026年02月07日
立地
-
住所 東京都豊島区南池袋二丁目17-7 建物名/所在階 アップルーヴメント/2階 最寄駅 JR山手線池袋駅
徒歩3分近隣駅1 ー 近隣駅2 ー
費用/契約
-
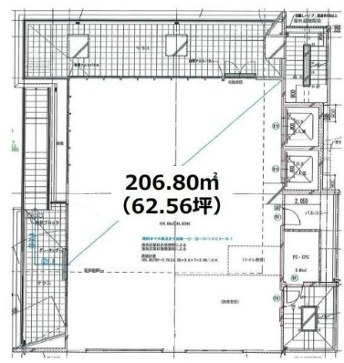
造作価格 ー 賃料(坪単価) 4,410,560円(88,008円) 管理費/共益費(坪単価) 275,660円(5,500円) 保証金/敷金 0ヶ月 / 0ヶ月 償却 ご相談 礼金 0ヶ月 更新料/再契約料 ー その他費用 保証会社・保険等加入要 仲介手数料 1ヶ月 その他手数料 ー 契約期間 3年 契約種別 普通賃貸借
用途
-
物件の現況 ー 可能用途 指定あり 坪数 50.12坪
- 備考
- 水道メーター口径:25mm/ 電気容量(電灯):60KVA
電気容量(動力):190KW
前面ガラス張り/ デザイナーズ





















