物件ID:169160
情報公開日:2025年08月08日
情報更新日:2026年02月05日
立地
-
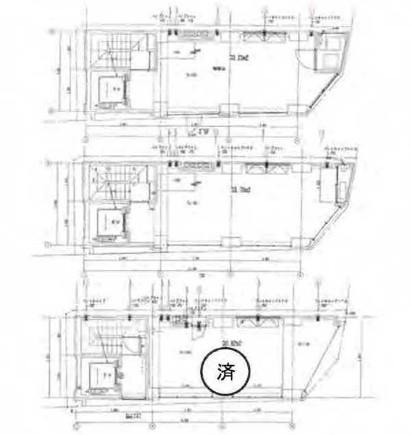
住所 東京都中野区中野三丁目31-5 建物名/所在階 AMAMI・BLDG 5F /5階 最寄駅 JR中央線(快速)中野駅
徒歩4分近隣駅1 ー 近隣駅2 ー
費用/契約
-
造作価格 ー 賃料(坪単価) 374,000円(37,206円) 管理費/共益費(坪単価) 33,000円(3,282円) 保証金/敷金 6ヶ月 / ー 償却 2ヶ月 礼金 2ヶ月 更新料/再契約料 ー その他費用 ー 仲介手数料 1ヶ月 その他手数料 ー 契約期間 3年 契約種別
用途
-
物件の現況 ー 可能用途 指定あり 坪数 10.05坪
- 備考



















